Villa a schiera in vendita

Formigine, Via Frosinone
€ 320.000
5 locali 5 locali
170 Mq 170 Mq
2 bagni 2 bagni

Villa a schiera in vendita

Formigine, Via Frosinone

Descrizione annuncio

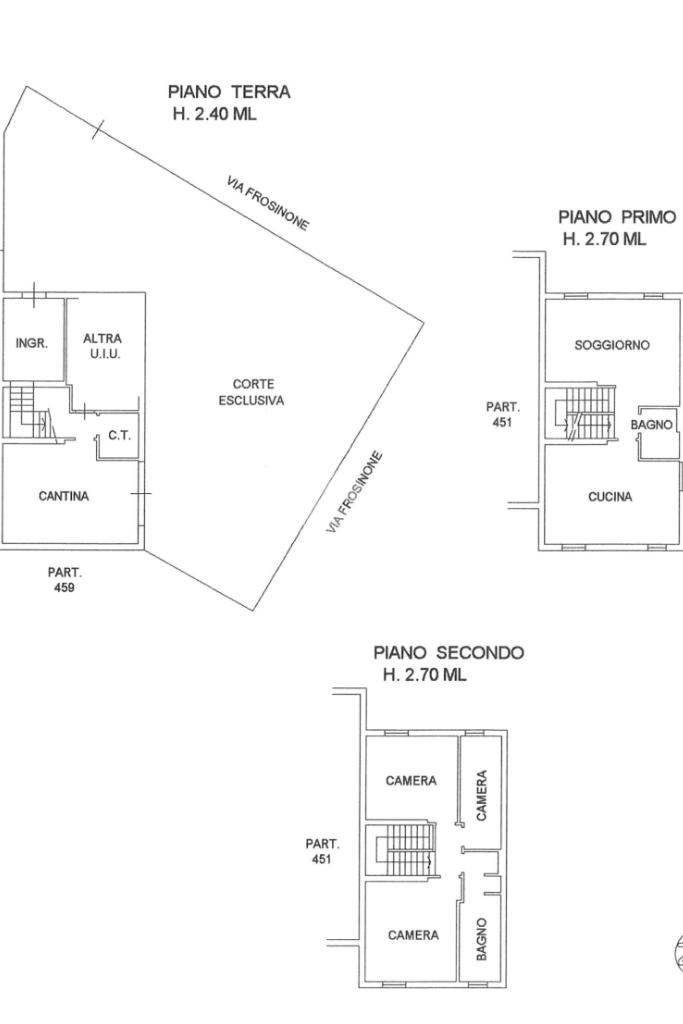
Formigine: proponiamo in vendita una villa a schiera di 170 mq da ristrutturare, ideale per chi cerca spazio e comfort. L'immobile, costruito nel 1983, si sviluppa su più piani: al piano terra offre ingresso con una stanza jolly,bagno e garage. Al piano 1° la villa dispone di tre camere da letto, perfette per una famiglia, e due bagni che garantiscono praticità e funzionalità.

Il giardino privato ideale per momenti di svago all'aperto.

Questa villa a schiera è una soluzione abitativa che coniuga spazio, praticità e una posizione strategica nel cuore di Formigine.

Per informazioni Daniele 377/0953657 o Paolo 348/0919153

Mostra tutto

Nelle vicinanze

Trasporto pubblico Trasporto pubblico
Formigine
Formigine
1,1 Km
Formigine Lar
Formigine Lar
960 m
Formigine
Formigine
1,1 Km
Fiorano
Fiorano
2,2 Km
Ricariche auto elettriche Ricariche auto elettriche
Eneldrive Municipio di Formigine
800 m
Formigine Libertà | EnelX
850 m
Eneldrive Francesco
980 m
Formigine Trento Trieste | EnelX
1,1 Km
Formigine Chiesa di Corlo | EnelX
1,9 Km
Scuole Scuole
Scuola secondaria di primo grado "Fiori"
690 m
Scuola Primaria "Giosuè Carducci"
740 m
Nido d’Infanzia
1,4 Km
Scuola Elementare “Francesco Ferrari”
1,5 Km
Scuole
1,8 Km
Farmacia Farmacia
Farmacia comunale di Formigine
810 m
Farmacia S. Pietro
870 m
Parafarmacia Conad
880 m
Farmacia S. Giuseppe
1,0 Km
Farmacia
1,2 Km
Supermercati Supermercati
Conad
900 m
CONAD
1,0 Km
Supermercati
1,4 Km
Lidl
1,5 Km
Ipercoop
1,5 Km
Negozi Negozi
Negozi
770 m
UnderColors Of Benetton
900 m
Panetteria le Macine
970 m
Forno Rinaldi
1,0 Km
Vogue
1,0 Km
Bar Bar
Bar
250 m
Bar Cacciatori
900 m
Bar Olimpico
950 m
Happy Bar
1,0 Km
Caffè dell'Orologio
1,1 Km
Ristoranti Ristoranti
Ristoranti
930 m
SoGood
970 m
Ristorate Cinese Grande du Cheng
1,0 Km
Hosteria del Castello
1,0 Km
Osteria Di Via Giardini
1,0 Km
Mostra tutto

Caratteristiche

Rif.:
61159036
Piano:
2 di 2 (Piano terra)
Box:
1
Camere da letto:
3
Arredamento:
Assente
Condizionamento:
Autonomo
Mostra tutto
Prezzo Prezzo
€ 320.000
Rata mutuo Rata mutuo
€ 1.508 / mese
Spese annue Spese annue
€ 200
Proponi il tuo prezzoProponi il tuo prezzo

Classe Energetica

F
F
F
F
F
F
F
F
F
EP globale non rinnovabile:
331.31 kW h/m² anno
EP globale rinnovabile:
331.31 kW h/m² anno
EP invernale del fabbricato:
EP estiva del fabbricato:
Anno di costruzione:
1983
Riscaldamento:
Autonomo
Tipo impianto:
A radiatori
Tipo alimentazione:
Metano

Ti interessa visionare l'immobile?

Fissa un appuntamento  Fissa un appuntamento

Richiedi informazioni

Clicca su Leggi per aprire l'informativa
* Questi campi sono obbligatori

Calcola il tuo mutuo

Semplice e senza impegno
Anticipo

( % )
Mutuo

( % )

pochi semplici passi

inserisci i tuoi dati
Questionario completato
Grazie per aver richiesto un appuntamento senza impegno con un nostro Consulente del Credito e Assicurativo.

Hai inserito correttamente tutti i dati necessari e a breve riceverai una e-mail con un link da convalidare per inviare i tuoi dati.
Affiliato
Studio Estense Srl
Via Giardini Sud, 1 41043 Formigine (MO)

Il nostro staff


  • Tomas Faraguti
    Affiliato

  • Emanuele Lodi
    Affiliato

  • Daniele Gozzi
    Collaboratore

  • Mirco Libbra
    Affiliato

  • Francesco Covelluzzi
    Collaboratore

  • Paolo Menzani
    Collaboratore

  • Eleonora Simonini
    Coordinatrice
Via Giardini Sud, 1 41043 Formigine (MO)
Zona: Formigine - Ubersetto - Colombaro - Corlo
Mostra su mappa
Orari: dal lunedì al venerdì 9:00 - 13:00 / 15:00 - 20:00 sabato 9:00 - 13:00 / 15:00 - 18:00
Affiliato
Studio Estense Srl
Via Giardini Sud, 1 41043 Formigine (MO)

2026 Tecnocasa Franchising S.p.A. - P. IVA 08365160152 - Via Monte Bianco 60/A 20089 Rozzano (MI). Ogni agenzia ha un proprio titolare ed è autonoma. Privacy policy | Policy utilizzo | Cookie policy