Quadrilocale in vendita

Formigine, Via pio donati
€ 215.000
3 locali 3 locali
120 Mq 120 Mq
2 bagni 2 bagni

Quadrilocale in vendita

Formigine, Via pio donati

Descrizione annuncio

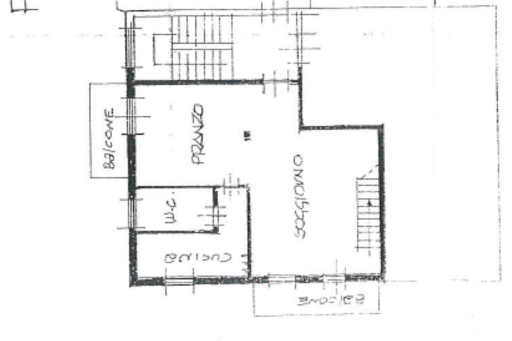
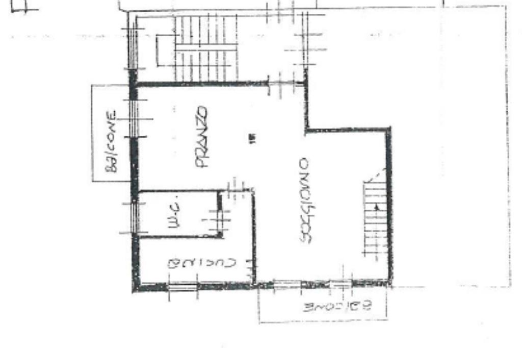
APPARTAMENTO SU DUE LIVELLI CON DOPPIO ACCESSO, BALCONE E GARAGE – 105 MQ

In contesto tranquillo e riservato, all’interno di una palazzina del 1975 di poche unità abitative senza ascensore, proponiamo appartamento al secondo piano disposto su due livelli, libero subito, con garage al piano interrato e riscaldamento autonomo.

L’immobile, di circa 105 mq commerciali, si sviluppa come segue:

Piano Secondo

Ingresso su ampia sala da pranzo con accesso a un balcone;Soggiorno separato, anche questo con accesso al balcone, spazioso e facilmente riconvertibile in terza camera da letto, grazie alla generosa metratura della sala da pranzo che permette di ricavare in essa un confortevole soggiorno. Cucina;Bagno finestrato con doccia.

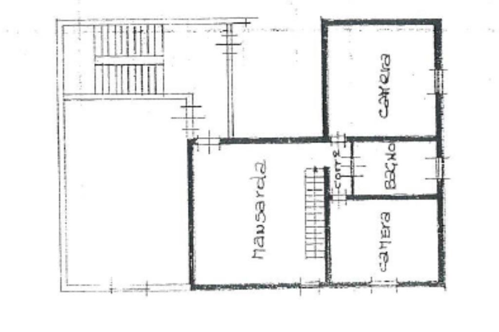
Piano Mansardato (abitabile)

Accessibile sia tramite comoda scala interna (non a chiocciola), sia dal vano scala condominiale, offrendo doppio accesso indipendente, perfetto per chi cerca privacy o vuole suddividere gli ambienti (es. zona ospiti, studio, figli grandi ecc.).

zona living/soggiorno;Due camere matrimoniali;Secondo bagno finestrato.

Completa la proprietà un garage al piano interrato, facilmente raggiungibile tramite una comoda rampa carrabile.

Caratteristiche principali:

Riscaldamento autonomoDoppio accesso (interno ed esterno)BalconeGarage incluso105 mqLibero subitoEntrambi i bagni finestrati

Soluzione ideale per famiglie o per chi cerca spazi versatili e indipendenti in un contesto di poche unità, con costi di gestione praticamente assenti.

Contattaci per maggiori informazioni o per fissare una visita.

Per avere maggiorni informazione contattare il 059552662 o chiamare il 3518055419.

MATTIA VENTURI

Mostra tutto

Nelle vicinanze

Trasporto pubblico Trasporto pubblico
Formigine
Formigine
980 m
Formigine Lar
Formigine Lar
320 m
Formigine
Formigine
770 m
Fiorano
Fiorano
2,8 Km
Casinalbo
Casinalbo
2,9 Km
Ricariche auto elettriche Ricariche auto elettriche
Formigine Libertà | EnelX
470 m
Eneldrive Francesco
790 m
Formigine Trento Trieste | EnelX
910 m
Eneldrive Municipio di Formigine
930 m
Formigine Chiesa di Corlo | EnelX
2,4 Km
Scuole Scuole
Scuola secondaria di primo grado "Fiori"
580 m
Nido d’Infanzia
840 m
Scuola Elementare “Francesco Ferrari”
960 m
Scuola Primaria "Giosuè Carducci"
1,0 Km
Scuole
2,3 Km
Farmacia Farmacia
Parafarmacia Conad
480 m
Farmacia S. Pietro
530 m
Farmacia
720 m
Farmacia S. Giuseppe
800 m
Farmacia comunale di Formigine
900 m
Supermercati Supermercati
Conad
510 m
CONAD
780 m
Lidl
980 m
Supermercati
1,2 Km
Ipercoop
1,4 Km
Negozi Negozi
Negozi
300 m
UnderColors Of Benetton
600 m
Forno Rinaldi
690 m
Vogue
760 m
San. Andrea
770 m
Bar Bar
Bar
520 m
Bar Cacciatori
600 m
Happy Bar
780 m
Caffè dell'Orologio
870 m
Bar Olimpico
980 m
Ristoranti Ristoranti
Ristoranti
270 m
Osteria Di Via Giardini
430 m
Alessia
670 m
Ristorate Cinese Grande du Cheng
670 m
Hosteria del Castello
780 m
Mostra tutto

Caratteristiche

Rif.:
61110375
Piano:
2 di 3 (Piano medio)
Box:
1
Balconi:
2
Camere da letto:
2
Condizionamento:
Autonomo
Mostra tutto
Prezzo Prezzo
€ 215.000
Rata mutuo Rata mutuo
€ 1.013 / mese
Spese annue Spese annue
€ 100
Proponi il tuo prezzoProponi il tuo prezzo

Classe Energetica

Questo immobile è esente da classe energetica
Anno di costruzione:
1975
Riscaldamento:
Autonomo
Tipo impianto:
A radiatori
Tipo alimentazione:
Metano

Ti interessa visionare l'immobile?

Fissa un appuntamento  Fissa un appuntamento

Richiedi informazioni

Clicca su Leggi per aprire l'informativa
* Questi campi sono obbligatori

Calcola il tuo mutuo

Semplice e senza impegno
Anticipo

( % )
Mutuo

( % )

pochi semplici passi

inserisci i tuoi dati
Questionario completato
Grazie per aver richiesto un appuntamento senza impegno con un nostro Consulente del Credito e Assicurativo.

Hai inserito correttamente tutti i dati necessari e a breve riceverai una e-mail con un link da convalidare per inviare i tuoi dati.
Affiliato
Studio Estense Srl
Via Giardini Sud, 1 41043 Formigine (MO)

Il nostro staff


  • Tomas Faraguti
    Affiliato

  • Emanuele Lodi
    Affiliato

  • Daniele Gozzi
    Collaboratore

  • Mirco Libbra
    Affiliato

  • Francesco Covelluzzi
    Collaboratore

  • Paolo Menzani
    Collaboratore

  • Eleonora Simonini
    Coordinatrice
Via Giardini Sud, 1 41043 Formigine (MO)
Zona: Formigine - Ubersetto - Colombaro - Corlo
Mostra su mappa
Orari: dal lunedì al venerdì 9:00 - 13:00 / 15:00 - 20:00 sabato 9:00 - 13:00 / 15:00 - 18:00
Affiliato
Studio Estense Srl
Via Giardini Sud, 1 41043 Formigine (MO)

2026 Tecnocasa Franchising S.p.A. - P. IVA 08365160152 - Via Monte Bianco 60/A 20089 Rozzano (MI). Ogni agenzia ha un proprio titolare ed è autonoma. Privacy policy | Policy utilizzo | Cookie policy